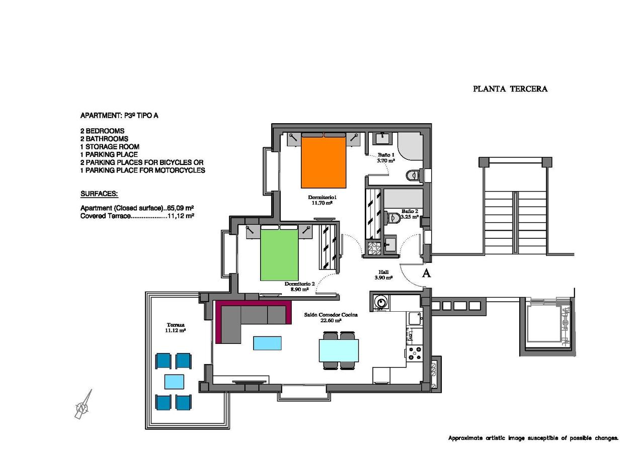
Key Features
- 2 bedrooms
- 2 bathrooms
- 65 m2 build
- 0 m2 plot
- Swimming Pool: Yes
Property Description
Magnificent apartment between the sea and the golf! Cozy apartment with 2 bedrooms and 2 bathrooms The residence is located in a quiet and safe area and is fully equipped (it has all possible comforts). In the immediate vicinity you will find for example 4 magnificent golf courses, a large shopping area (la Zenia Boulevard), several beaches, supermarkets, bars and restaurants, etc. It is a luxury residence, all the apartments and houses are spacious and comfortable. The residence has private parking and is equipped with lifts. In the complex there is a communal swimming pool (large swimming pool, children’s pool and jacuzzi with hot water). Also a playground and several green spaces. In short: the ideal place to rest and enjoy the region, to live in Spain.






















